Wir realisieren anspruchsvolle Wohnprojekte gemäß Ihren individuellen Vorgaben.
Hierbei erarbeiten wir verschiedene Lösungsmöglichkeiten und stimmen diese genauestens mit Ihnen ab. Selbstverständlich behalten wir dabei den mit Ihnen abgestimmten Kostenrahmen stets im Blick. Planungsgrundlage sind Ihre individuellen Wünsche und wirtschaftlichen Vorgaben.
Ökologische und wirtschaftliche Gesichtspunkte verlieren wir dabei nie aus den Augen. Die auf das Gebäude optimal abgestimmte moderne Technik führt in Verbindung mit sinnvollen Konstruktionen und wohngesunden Baumaterialien zu energieoptimierten Lösungen auf Passivhausstandard.
Auf sinnvolle Materialkombinationen und energetische Optimierungen zur Reduzierung der Energie-kosten legen wir großen Wert und sichern dadurch die nachhaltige Nutzbarkeit Ihres Objekts.
Wir beraten private und gewerbliche Kunden sowie Bauherrengruppen in organisatorischen und vertragsrechtlichen Angelegenheiten – und dies bereits vor dem Kauf des Baugrundstücks.
Bei der Planung und Realisierung von Siedlungsanlagen übernehmen wir die umfangreichen Abstimmungen mit allen öffentlichen Stellen.
Geschosswohnbauten werden für private Bauherren (Kapitalanleger), gewerbliche Bauträger, gemeinnützige Bauvereine und Stiftungen sowie für Bauträgergesellschaften geplant und realisiert.
Realisierte Wohnbauten
Neubau eines Geschosswohnbaus mit 14 Wohnungen und Tiefgarage
Wuppertal




Wuppertal




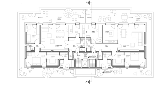
Neubau einer Wohnanlage mit 22 Wohneinheiten
Aufderhöher Straße, Solingen


Visualisierung Sébastien Bernard - de-visu



Aufderhöher Straße, Solingen


Visualisierung Sébastien Bernard - de-visu



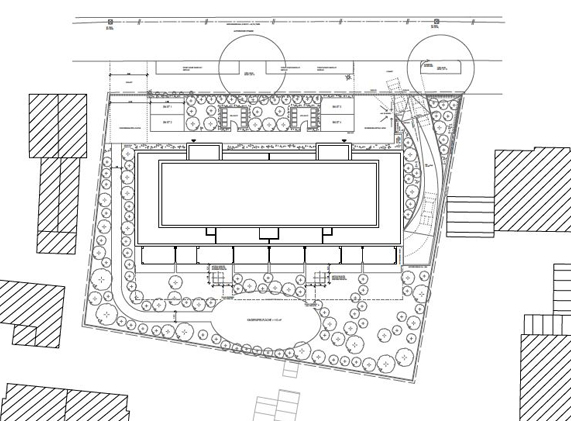
Neubau einer Wohnanlage mit 36 Wohneinheiten
und 10 Garagen



und 10 Garagen



2015
Solingen, Möwenweg (Unnersberger Alle)
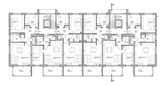
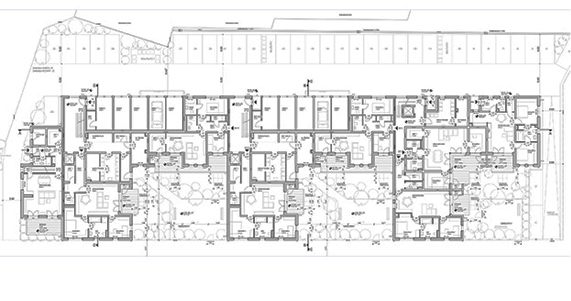
Neubau einer Wohnanlage mit 18 Wohneinheiten und Tiefgarage
Bauherr: Bauträger
Nettowohnfläche: ca. 1550 m²
Bruttogeschossfläche: ca. 2600 m²
Leistungen nach HOAI: 1–4, 5 teilweise
Solingen, Möwenweg (Unnersberger Alle)
Neubau einer Wohnanlage mit 18 Wohneinheiten und Tiefgarage
Bauherr: Bauträger
Nettowohnfläche: ca. 1550 m²
Bruttogeschossfläche: ca. 2600 m²
Leistungen nach HOAI: 1–4, 5 teilweise
2015
Langenfeld, Kurfürstenweg 40a
Neubau eines 1-2 Familienhauses
Bauherr: privat
Nettowohnfläche: ca. 230 m²
Untergeschossfläche: ca. 70 m²
Leistungen nach HOAI: 1-9
Bauart: Massivbau / Putz, Passivhaus
Langenfeld, Kurfürstenweg 40a
Neubau eines 1-2 Familienhauses
Bauherr: privat
Nettowohnfläche: ca. 230 m²
Untergeschossfläche: ca. 70 m²
Leistungen nach HOAI: 1-9
Bauart: Massivbau / Putz, Passivhaus
2013
Solingen, Marienstraße 20
Bauherr: privat
Anzahl der Wohneinheiten: 9
Nettowohnfläche: 650 qm
Bruttogeschossfläche: 980 qm
Leistungen nach HOAI: 1-9
Bauart: Massivbau/Putz, Passivhaus
Solingen, Marienstraße 20
Bauherr: privat
Anzahl der Wohneinheiten: 9
Nettowohnfläche: 650 qm
Bruttogeschossfläche: 980 qm
Leistungen nach HOAI: 1-9
Bauart: Massivbau/Putz, Passivhaus
2013
Solingen, Watzmannstraße 40
Bauherr: privat
Anzahl der Wohneinheiten: 3
Nettowohnfläche: 350 qm
Bruttogeschossfläche: 490 qm
Leistungen nach HOAI: 1–9
Bauart: Massivbau/Putz, Passivhaus
Solingen, Watzmannstraße 40
Bauherr: privat
Anzahl der Wohneinheiten: 3
Nettowohnfläche: 350 qm
Bruttogeschossfläche: 490 qm
Leistungen nach HOAI: 1–9
Bauart: Massivbau/Putz, Passivhaus
2011
Solingen, Ritterstraße 10
Bauherr: privat
Nutzfläche: 240 qm
Bruttogeschossfläche: 310 qm
Leistungen nach HOAI: 1–4
Bauart: Massivbau, Sichtbeton
Nutzung: Blumenhaus mit Eigentümerwohnung
Solingen, Ritterstraße 10
Bauherr: privat
Nutzfläche: 240 qm
Bruttogeschossfläche: 310 qm
Leistungen nach HOAI: 1–4
Bauart: Massivbau, Sichtbeton
Nutzung: Blumenhaus mit Eigentümerwohnung
2008
Solingen, Erzgebirgestraße
Bauherr: Bauträger
4 Häuser mit 4 Wohneinheiten
Nettowohnfläche: 560 qm
Bruttogeschossfläche: 1.030 qm
Leistungen nach HOAI: 1–4
Bauart: Massivbau/Verblendmauerwerk
Solingen, Erzgebirgestraße
Bauherr: Bauträger
4 Häuser mit 4 Wohneinheiten
Nettowohnfläche: 560 qm
Bruttogeschossfläche: 1.030 qm
Leistungen nach HOAI: 1–4
Bauart: Massivbau/Verblendmauerwerk
2007
Berg. Gladbach, Am Grünen Weiher
Bauherr: privat
1 Wohneinheit
Nettowohnfläche: 450 qm
Bruttogeschossfläche: 660 qm
Leistung nach HOAI: 1-9
Bauart: Massivbau/Verblendmauerwerk
Berg. Gladbach, Am Grünen Weiher
Bauherr: privat
1 Wohneinheit
Nettowohnfläche: 450 qm
Bruttogeschossfläche: 660 qm
Leistung nach HOAI: 1-9
Bauart: Massivbau/Verblendmauerwerk
2006
Solingen, Virchowstraße 35–37C
Bauherr: Bauträger
6 Häuser mit 6 Wohneinheiten
Nettowohnfläche: 810 qm
Bruttogeschossfläche: 1.520 qm
Leistungen nach HOAI: 1–4
Bauart: Massivbau/Verblendmauerwerk
Solingen, Virchowstraße 35–37C
Bauherr: Bauträger
6 Häuser mit 6 Wohneinheiten
Nettowohnfläche: 810 qm
Bruttogeschossfläche: 1.520 qm
Leistungen nach HOAI: 1–4
Bauart: Massivbau/Verblendmauerwerk
2006
Leverkusen, Unter dem Schildchen 18
Bauherr: privat
1 Haus mit 1 Wohneinheit
Nettowohnfläche: 150 qm
Bruttogeschossfläche: 240 qm
Leistungen nach HOAI: 1–5
Massivbau/Putz
Leverkusen, Unter dem Schildchen 18
Bauherr: privat
1 Haus mit 1 Wohneinheit
Nettowohnfläche: 150 qm
Bruttogeschossfläche: 240 qm
Leistungen nach HOAI: 1–5
Massivbau/Putz
2006
Solingen, Virchowstraße 35–37
Bauherr: Bauträger
18 Häuser mit 18 Wohneinheiten
Nettowohnfläche: 2.430 qm
Bruttogeschossfläche: 4.560 qm
Leistungen nach HOAI: 1–4
Bauweise: Massivbau/Verblendmauerwerk
Solingen, Virchowstraße 35–37
Bauherr: Bauträger
18 Häuser mit 18 Wohneinheiten
Nettowohnfläche: 2.430 qm
Bruttogeschossfläche: 4.560 qm
Leistungen nach HOAI: 1–4
Bauweise: Massivbau/Verblendmauerwerk
2005
Solingen, Graf-Engelbert-Straße
Bauherr: Altenstiftung einer Sparkasse
Anzahl der Wohneinheiten: 26
Nettowohnfläche: 1.550 qm
Bruttogeschossfläche: 4.000 qm
Leistungen nach HOAI: 1–9
Bauart: Massivbau/Putz
50 Tiefgaragenstellplätze
Solingen, Graf-Engelbert-Straße
Bauherr: Altenstiftung einer Sparkasse
Anzahl der Wohneinheiten: 26
Nettowohnfläche: 1.550 qm
Bruttogeschossfläche: 4.000 qm
Leistungen nach HOAI: 1–9
Bauart: Massivbau/Putz
50 Tiefgaragenstellplätze
2005
Solingen, Opladener Straße
Bauherr: privat
2 Wohneinheiten
Nettowohnfläche: 260 qm
Bruttogeschossfläche: 520 qm
Leistung nach HOAI: 1-9
Bauart: Massivbau/Putz
Solingen, Opladener Straße
Bauherr: privat
2 Wohneinheiten
Nettowohnfläche: 260 qm
Bruttogeschossfläche: 520 qm
Leistung nach HOAI: 1-9
Bauart: Massivbau/Putz
2004
Solingen, Graf-Engelbert-Straße
Bauherr: Altenstiftung einer Sparkasse
Anzahl der Wohneinheiten: 48
Nettowohnfläche: 2.800 qm
Bruttogeschossfläche: 7.300 qm
Leistungen nach HOAI: 1–9
Bauart: Massivbau/Putz
100 Tiefgaragenstellplätze
Solingen, Graf-Engelbert-Straße
Bauherr: Altenstiftung einer Sparkasse
Anzahl der Wohneinheiten: 48
Nettowohnfläche: 2.800 qm
Bruttogeschossfläche: 7.300 qm
Leistungen nach HOAI: 1–9
Bauart: Massivbau/Putz
100 Tiefgaragenstellplätze
2004
Solingen, Körnerstraße
Bauherr: privat
2 Häuser mit 2 Wohneinheiten
Nettowohnfläche: 270 qm
Bruttogeschossfläche: 400 qm
Leistungen nach HOAI: 1–8
Massivbau/Putz
Solingen, Körnerstraße
Bauherr: privat
2 Häuser mit 2 Wohneinheiten
Nettowohnfläche: 270 qm
Bruttogeschossfläche: 400 qm
Leistungen nach HOAI: 1–8
Massivbau/Putz
2003
Solingen, Ernst-Moritz-Franzen-Straße
Bauherr: Bauträger
Anzahl der Wohneinheiten: 22
Nettowohnfläche: 1.700 qm
Bruttogeschossfläche: 2.700 qm
Leistungen nach HOAI: 1–9
Bauart: Massivbau/Putz
20 Tiefgaragenstellplätze
Solingen, Ernst-Moritz-Franzen-Straße
Bauherr: Bauträger
Anzahl der Wohneinheiten: 22
Nettowohnfläche: 1.700 qm
Bruttogeschossfläche: 2.700 qm
Leistungen nach HOAI: 1–9
Bauart: Massivbau/Putz
20 Tiefgaragenstellplätze
2003
Solingen, Virchowstraße
Bauherr: Bauträger
8 Häuser mit 8 Wohneinheiten
Nettowohnfläche: 1.080 qm
Bruttogeschossfläche: 2.030
Leistungen nach HOAI: 1–4
Bauweise: Massivbau/Verblendmauerwerk
Solingen, Virchowstraße
Bauherr: Bauträger
8 Häuser mit 8 Wohneinheiten
Nettowohnfläche: 1.080 qm
Bruttogeschossfläche: 2.030
Leistungen nach HOAI: 1–4
Bauweise: Massivbau/Verblendmauerwerk
2003
Solingen, Virchowstraße
Bauherr: Bauträger
2 Häuser mit 2 Wohneinheiten
Nettowohnfläche: 270 qm
Bruttogeschossfläche: 400 qm
Leistungen nach HOAI: 1–4
Bauart: Massivbau/Verblendmauerwerk
Solingen, Virchowstraße
Bauherr: Bauträger
2 Häuser mit 2 Wohneinheiten
Nettowohnfläche: 270 qm
Bruttogeschossfläche: 400 qm
Leistungen nach HOAI: 1–4
Bauart: Massivbau/Verblendmauerwerk
2002–2003
Solingen, Widderter Straße
Bauherr: privat
4 Häuser mit 4 Wohneinheiten
Nettowohnfläche: 600 qm
Bruttogeschossfläche: 900 qm
Leistungen nach HOAI: 1–5
Massivbau/Verblendmauerwerk
Solingen, Widderter Straße
Bauherr: privat
4 Häuser mit 4 Wohneinheiten
Nettowohnfläche: 600 qm
Bruttogeschossfläche: 900 qm
Leistungen nach HOAI: 1–5
Massivbau/Verblendmauerwerk
2002–2003
Leverkusen, Unter dem Schildchen 22–28
Bauherr: privat
4 Häuser mit 4 Wohneinheiten
Nettowohnfläche: 550 qm
Bruttogeschossfläche: 850 qm
Leistungen nach HOAI: 1–5
Massivbau/Putz
Leverkusen, Unter dem Schildchen 22–28
Bauherr: privat
4 Häuser mit 4 Wohneinheiten
Nettowohnfläche: 550 qm
Bruttogeschossfläche: 850 qm
Leistungen nach HOAI: 1–5
Massivbau/Putz
2002–2003
Solingen, Bergerstraße
Bauherr: privat
6 Häuser mit 6 Wohneinheiten
Nettowohnfläche: 800 qm
Bruttogeschossfläche: 1.200 qm
Leistungen nach HOAI: 1–5
Massivbau/Verblendmauerwerk
Solingen, Bergerstraße
Bauherr: privat
6 Häuser mit 6 Wohneinheiten
Nettowohnfläche: 800 qm
Bruttogeschossfläche: 1.200 qm
Leistungen nach HOAI: 1–5
Massivbau/Verblendmauerwerk
2002
Solingen, Hermann-Löns-Weg
Bauherr: Bauträger
Anzahl der Wohneinheiten: 14
Nettowohnfläche: 1.400 qm
Bruttogeschossfläche: 2.200 qm
Leistungen nach HOAI: 1–5
Bauart: Massivbau/Putz
20 Tiefgaragenstellplätze
Solingen, Hermann-Löns-Weg
Bauherr: Bauträger
Anzahl der Wohneinheiten: 14
Nettowohnfläche: 1.400 qm
Bruttogeschossfläche: 2.200 qm
Leistungen nach HOAI: 1–5
Bauart: Massivbau/Putz
20 Tiefgaragenstellplätze
2002
Leichlingen, Herscheid
Bauherr: privat
1 Wohneinheit
Nettowohnfläche: 160 qm
Bruttogeschossfläche: 235 qm
Leistung nach HOAI: 1-9
Bauart: Massivbau/Putz
Leichlingen, Herscheid
Bauherr: privat
1 Wohneinheit
Nettowohnfläche: 160 qm
Bruttogeschossfläche: 235 qm
Leistung nach HOAI: 1-9
Bauart: Massivbau/Putz
2002
Solingen, Mangenberger Straße
Bauherr: Bauträger
18 Häuser mit 18 Wohneinheiten
Nettowohnfläche: 2.850 qm
Bruttogeschossfläche: 4.200 qm
Leistungen nach HOAI: 1–4
Bauweise: Massivbau/Verblendmauerwerk
Solingen, Mangenberger Straße
Bauherr: Bauträger
18 Häuser mit 18 Wohneinheiten
Nettowohnfläche: 2.850 qm
Bruttogeschossfläche: 4.200 qm
Leistungen nach HOAI: 1–4
Bauweise: Massivbau/Verblendmauerwerk
2001
Solingen, Frankenstraße
Bauherr: privat
Anzahl der Wohneinheiten: 12
Nettowohnfläche: 950 qm
Bruttogeschossfläche: 1.300 qm
Leistungen nach HOAI: 1–9
Bauart: Massivbau/Putz
Solingen, Frankenstraße
Bauherr: privat
Anzahl der Wohneinheiten: 12
Nettowohnfläche: 950 qm
Bruttogeschossfläche: 1.300 qm
Leistungen nach HOAI: 1–9
Bauart: Massivbau/Putz
2001
Solingen, Frankenstraße
Bauherr: Bauträger
Anzahl der Wohneinheiten: 10
Nettowohnfläche: 800 qm
Bruttogeschossfläche: 1.100 qm
Leistungen nach HOAI: 1–9
Bauart: Massivbau/Verblendmauerwerk
Solingen, Frankenstraße
Bauherr: Bauträger
Anzahl der Wohneinheiten: 10
Nettowohnfläche: 800 qm
Bruttogeschossfläche: 1.100 qm
Leistungen nach HOAI: 1–9
Bauart: Massivbau/Verblendmauerwerk
2001
Solingen, Fritz-Reuter-Straße
Bauherr: privat
Anzahl der Wohneinheiten: 6
Nettowohnfläche: 480 qm
Bruttogeschossfläche: 700 qm
Leistungen nach HOAI: 1–5
Bauart: Massivbau/Putz
Solingen, Fritz-Reuter-Straße
Bauherr: privat
Anzahl der Wohneinheiten: 6
Nettowohnfläche: 480 qm
Bruttogeschossfläche: 700 qm
Leistungen nach HOAI: 1–5
Bauart: Massivbau/Putz
2001
Solingen, Schnepperter Straße
Bauherr: privat
Anzahl der Wohneinheiten: 3
Nettowohnfläche: 200 qm
Bruttogeschossfläche: 300 qm
Leistungen nach HOAI: 1–5
Bauart: Massivbau/Putz
Solingen, Schnepperter Straße
Bauherr: privat
Anzahl der Wohneinheiten: 3
Nettowohnfläche: 200 qm
Bruttogeschossfläche: 300 qm
Leistungen nach HOAI: 1–5
Bauart: Massivbau/Putz
2001
Leichlingen, Schneppenpohl
Bauherr: Bauträger
Anzahl der Wohneinheiten: 10
Nettowohnfläche: 850 qm
ruttogeschossfläche: 1.300 qm
Leistungen nach HOAI: 1–5
Bauart: Massivbau/Putz
Leichlingen, Schneppenpohl
Bauherr: Bauträger
Anzahl der Wohneinheiten: 10
Nettowohnfläche: 850 qm
ruttogeschossfläche: 1.300 qm
Leistungen nach HOAI: 1–5
Bauart: Massivbau/Putz
2001
Solingen, Widderter Str.
Bauherr: privat
1 Wohneinheit
Nettowohnfläche: 165 qm
Bruttogeschossfläche: 285 qm
Leistung nach HOAI: 1-9
Bauart: Massivbau/Verblendmauerwerk
Solingen, Widderter Str.
Bauherr: privat
1 Wohneinheit
Nettowohnfläche: 165 qm
Bruttogeschossfläche: 285 qm
Leistung nach HOAI: 1-9
Bauart: Massivbau/Verblendmauerwerk
2001
Dortmund, Lütgendortmund
Bauherr: Bauträger
56 Häuser mit 56 Wohneinheiten
Nettowohnfläche: 7.400 qm
Bruttogeschossfläche: 11.000 qm
Leistungen nach HOAI: 1–4
Bauweise: Massivbau/Verblendmauerwerk
Dortmund, Lütgendortmund
Bauherr: Bauträger
56 Häuser mit 56 Wohneinheiten
Nettowohnfläche: 7.400 qm
Bruttogeschossfläche: 11.000 qm
Leistungen nach HOAI: 1–4
Bauweise: Massivbau/Verblendmauerwerk
2000
Solingen, Wittkuller Straße
Bauherr: privat
Anzahl der Wohneinheiten: 8
Nettowohnfläche: 600 qm
Bruttogeschossfläche: 830 qm
Leistungen nach HOAI: 1–9
Bauart :Massivbau/Verblendmauerwerk
Solingen, Wittkuller Straße
Bauherr: privat
Anzahl der Wohneinheiten: 8
Nettowohnfläche: 600 qm
Bruttogeschossfläche: 830 qm
Leistungen nach HOAI: 1–9
Bauart :Massivbau/Verblendmauerwerk
2000
Solingen, Rolsberger Str.
Bauherr: privat
1 Wohneinheit
Nettowohnfläche: 145 qm
Bruttogeschossfläche: 210 qm
Leistung nach HOAI: 1-3
Bauart: Holzständerbauweise
Solingen, Rolsberger Str.
Bauherr: privat
1 Wohneinheit
Nettowohnfläche: 145 qm
Bruttogeschossfläche: 210 qm
Leistung nach HOAI: 1-3
Bauart: Holzständerbauweise
2000
Solingen, Rolsberger Straße
Bauherr: privat
6 Häuser mit 10 Wohneinheiten
Nettowohnfläche: 900 qm
Bruttogeschossfläche: 1.400 qm
Leistungen nach HOAI: 1–8
Massivbau/Verblendmauerwerk
Solingen, Rolsberger Straße
Bauherr: privat
6 Häuser mit 10 Wohneinheiten
Nettowohnfläche: 900 qm
Bruttogeschossfläche: 1.400 qm
Leistungen nach HOAI: 1–8
Massivbau/Verblendmauerwerk
2000
Overath, Müllerwiese
Bauherr: Bauträger
8 Häuser mit 8 Wohneinheiten
Nettowohnfläche: 1.100 qm
Bruttogeschossfläche: 1.600 qm
Leistungen nach HOAI: 1–4
Massivbau/Verblendmauerwerk
Overath, Müllerwiese
Bauherr: Bauträger
8 Häuser mit 8 Wohneinheiten
Nettowohnfläche: 1.100 qm
Bruttogeschossfläche: 1.600 qm
Leistungen nach HOAI: 1–4
Massivbau/Verblendmauerwerk
2000
Wuppertal, Neuenhofer Straße
Bauherr: Bauträger
12 Häuser mit 12 Wohneinheiten
Nettowohnfläche: 1.600 qm
Bruttogeschossfläche: 2.400 qm
Leistungen nach HOAI: 1–4
Massivbau/Verblendmauerwerk
Wuppertal, Neuenhofer Straße
Bauherr: Bauträger
12 Häuser mit 12 Wohneinheiten
Nettowohnfläche: 1.600 qm
Bruttogeschossfläche: 2.400 qm
Leistungen nach HOAI: 1–4
Massivbau/Verblendmauerwerk
2000
Haan, Wiedenhof
Bauherr: Bauträger
17 Häuser mit 17 Wohneinheiten
Nettowohnfläche: 2.300 qm
Bruttogeschossfläche: 3.400 qm
Leistungen nach HOAI: 1–4
Bauweise: Massivbau/Verblendmauerwerk
Haan, Wiedenhof
Bauherr: Bauträger
17 Häuser mit 17 Wohneinheiten
Nettowohnfläche: 2.300 qm
Bruttogeschossfläche: 3.400 qm
Leistungen nach HOAI: 1–4
Bauweise: Massivbau/Verblendmauerwerk
1999
Solingen, Schnepperter Straße
Bauherr: Bauträger
Anzahl der Wohneinheiten: 6
Nettowohnfläche: 500 qm
Bruttogeschossfläche: 770 qm
Leistungen nach HOAI: 1–9
Bauart: Massivbau/Verblendmauerwerk
Solingen, Schnepperter Straße
Bauherr: Bauträger
Anzahl der Wohneinheiten: 6
Nettowohnfläche: 500 qm
Bruttogeschossfläche: 770 qm
Leistungen nach HOAI: 1–9
Bauart: Massivbau/Verblendmauerwerk
1999
Solingen, Schnepperter Straße
Bauherr: Bauträger
Anzahl der Wohneinheiten: 7
Nettowohnfläche: 550 qm
Bruttogeschossfläche: 850 qm
Leistungen nach HOAI: 1–9
Bauart: Massivbau/Verblendmauerwerk
Solingen, Schnepperter Straße
Bauherr: Bauträger
Anzahl der Wohneinheiten: 7
Nettowohnfläche: 550 qm
Bruttogeschossfläche: 850 qm
Leistungen nach HOAI: 1–9
Bauart: Massivbau/Verblendmauerwerk
1999
Solingen, Vogelsanger Busch
Bauherr: privat
1 Wohneinheit
Nettowohnfläche: 160 qm
Bruttogeschossfläche: 230 qm
Leistung nach HOAI: 1-9
Bauart: Massivbau/Verblendmauerwerk
Solingen, Vogelsanger Busch
Bauherr: privat
1 Wohneinheit
Nettowohnfläche: 160 qm
Bruttogeschossfläche: 230 qm
Leistung nach HOAI: 1-9
Bauart: Massivbau/Verblendmauerwerk
1999
Wülfrath, Kastanienallee
Bauherr: Bauträger
20 Häuser mit 26 Wohneinheiten
Nettowohnfläche: 3.050 qm
Bruttogeschossfläche: 4.000 qm
Leistungen nach HOAI: 1–4
Bauweise: Massivbau/Verblendmauerwerk
Wülfrath, Kastanienallee
Bauherr: Bauträger
20 Häuser mit 26 Wohneinheiten
Nettowohnfläche: 3.050 qm
Bruttogeschossfläche: 4.000 qm
Leistungen nach HOAI: 1–4
Bauweise: Massivbau/Verblendmauerwerk
1997–1999
Leichlingen, Schneppenpohl
Bauherr: Bauträger
16 Häuser mit 16 Wohneinheiten
Nettowohnfläche: 2.100 qm
Bruttogeschossfläche: 2.900 qm
Leistungen nach HOAI: 1–5
Holztafelbauweise
Leichlingen, Schneppenpohl
Bauherr: Bauträger
16 Häuser mit 16 Wohneinheiten
Nettowohnfläche: 2.100 qm
Bruttogeschossfläche: 2.900 qm
Leistungen nach HOAI: 1–5
Holztafelbauweise
1997–1999
Solingen, Am Vogelsanger Busch
Bauherr: privat
8 Häuser mit 14 Wohneinheiten
Nettowohnfläche: 1.400 qm
Bruttogeschossfläche: 1.900 qm
Leistungen nach HOAI: 1–9
Massivbau/Verblendmauerwerk u. Holzbauweise
Solingen, Am Vogelsanger Busch
Bauherr: privat
8 Häuser mit 14 Wohneinheiten
Nettowohnfläche: 1.400 qm
Bruttogeschossfläche: 1.900 qm
Leistungen nach HOAI: 1–9
Massivbau/Verblendmauerwerk u. Holzbauweise
1997–1999
Solingen, Stahlstraße
Bauherr: privat
2 Häuser mit 2 Wohneinheiten
Nettowohnfläche: 270 qm
Bruttogeschossfläche: 400 qm
Leistungen nach HOAI: 1–8
Massivbau/Putz
Solingen, Stahlstraße
Bauherr: privat
2 Häuser mit 2 Wohneinheiten
Nettowohnfläche: 270 qm
Bruttogeschossfläche: 400 qm
Leistungen nach HOAI: 1–8
Massivbau/Putz
1998
Solingen, Obenitterstraße
Bauherr: Bauträger
20 Häuser mit 20 Wohneinheiten
Nettowohnfläche: 2.600 qm
Bruttogeschossfläche: 3.800 qm
Leistungen nach HOAI: 1–4
Bauweise: Massivbau/Verblendmauerwerk
Solingen, Obenitterstraße
Bauherr: Bauträger
20 Häuser mit 20 Wohneinheiten
Nettowohnfläche: 2.600 qm
Bruttogeschossfläche: 3.800 qm
Leistungen nach HOAI: 1–4
Bauweise: Massivbau/Verblendmauerwerk
1997
Solingen, Brucknerstraße
Bauherr: Bauträger
Anzahl der Wohneinheiten: 4
Nettowohnfläche: 350 qm
Bruttogeschossfläche: 530 qm
Leistungen nach HOAI: 1–9
Bauart: Massivbau/Putz
Solingen, Brucknerstraße
Bauherr: Bauträger
Anzahl der Wohneinheiten: 4
Nettowohnfläche: 350 qm
Bruttogeschossfläche: 530 qm
Leistungen nach HOAI: 1–9
Bauart: Massivbau/Putz
1997
Solingen, Wiener Straße
Bauherr: Bauträger
Anzahl der Wohneinheiten: 6
Nettowohnfläche: 500 qm
Bruttogeschossfläche: 750 qm
Leistungen nach HOAI: 1–9
Bauart: Massivbau/Putz
Solingen, Wiener Straße
Bauherr: Bauträger
Anzahl der Wohneinheiten: 6
Nettowohnfläche: 500 qm
Bruttogeschossfläche: 750 qm
Leistungen nach HOAI: 1–9
Bauart: Massivbau/Putz
1997
Solingen, Untenpilghausen
Bauherr: privat
Anzahl der Wohneinheiten: 8
Nettowohnfläche: 600 qm
Bruttogeschossfläche: 900 qm
Leistungen nach HOAI: 1–9
Bauart: Massivbau/Verblendmauerwerk
Solingen, Untenpilghausen
Bauherr: privat
Anzahl der Wohneinheiten: 8
Nettowohnfläche: 600 qm
Bruttogeschossfläche: 900 qm
Leistungen nach HOAI: 1–9
Bauart: Massivbau/Verblendmauerwerk
1997
Solingen, Wittkuller Straße
Bauherr: Bauträger
8 Häuser mit 8 Wohneinheiten
Nettowohnfläche: 1.050 qm
Bruttogeschossfläche: 1.450 qm
Leistungen nach HOAI: 1–4
Bauweise: Massivbau/Verblendmauerwerk
Solingen, Wittkuller Straße
Bauherr: Bauträger
8 Häuser mit 8 Wohneinheiten
Nettowohnfläche: 1.050 qm
Bruttogeschossfläche: 1.450 qm
Leistungen nach HOAI: 1–4
Bauweise: Massivbau/Verblendmauerwerk
1997
Solingen, Am Vogelsanger Busch
Bauherr: Bauträger
5 Häuser mit 5 Wohneinheiten
Nettowohnfläche: 650 qm
Bruttogeschossfläche: 850 qm
Leistungen nach HOAI: 1–4
Bauweise: Holzbauweise
Solingen, Am Vogelsanger Busch
Bauherr: Bauträger
5 Häuser mit 5 Wohneinheiten
Nettowohnfläche: 650 qm
Bruttogeschossfläche: 850 qm
Leistungen nach HOAI: 1–4
Bauweise: Holzbauweise
1997
Solingen, Neptunstr.
Bauherr: privat
1 Wohneinheit
Nettowohnfläche: 155 qm
Bruttogeschossfläche: 200 qm
Leistung nach HOAI: 1-8
Bauart: Holztafelbauweise
Solingen, Neptunstr.
Bauherr: privat
1 Wohneinheit
Nettowohnfläche: 155 qm
Bruttogeschossfläche: 200 qm
Leistung nach HOAI: 1-8
Bauart: Holztafelbauweise
1996
Solingen, Ketzberger Straße
Bauherr: Bauträger
Anzahl der Wohneinheiten: 45
Nettowohnfläche: 3.600 qm
Bruttogeschossfläche: 5.700 qm
Leistungen nach HOAI: 1–4
Bauart: Massivbau/Putz
50 Tiefgaragenstellplätze
Solingen, Ketzberger Straße
Bauherr: Bauträger
Anzahl der Wohneinheiten: 45
Nettowohnfläche: 3.600 qm
Bruttogeschossfläche: 5.700 qm
Leistungen nach HOAI: 1–4
Bauart: Massivbau/Putz
50 Tiefgaragenstellplätze
1996
Solingen, Beckmannstraße
Bauherr: Bauträger
Anzahl der Wohneinheiten: 6
Nettowohnfläche: 450 qm
Bruttogeschossfläche: 600 qm
Leistungen nach HOAI: 1–9
Bauart: Massivbau/Putz
Solingen, Beckmannstraße
Bauherr: Bauträger
Anzahl der Wohneinheiten: 6
Nettowohnfläche: 450 qm
Bruttogeschossfläche: 600 qm
Leistungen nach HOAI: 1–9
Bauart: Massivbau/Putz
1996
Leverkusen, Burscheider Straße
Bauherr: privat
Anzahl der Wohneinheiten: 10
Nettowohnfläche: 750 qm
Bruttogeschossfläche: 1.150 qm
Leistungen nach HOAI: 1–9
Bauart: Massivbau/Putz
Leverkusen, Burscheider Straße
Bauherr: privat
Anzahl der Wohneinheiten: 10
Nettowohnfläche: 750 qm
Bruttogeschossfläche: 1.150 qm
Leistungen nach HOAI: 1–9
Bauart: Massivbau/Putz
1996
Leverkusen, Burscheider Straße
Bauherr: Bauträger
Anzahl der Wohneinheiten: 20
Nettowohnfläche: 1.500 qm
Bruttogeschossfläche: 2.300 qm
Leistungen nach HOAI: 1–9
Bauart: Massivbau/Putz
Leverkusen, Burscheider Straße
Bauherr: Bauträger
Anzahl der Wohneinheiten: 20
Nettowohnfläche: 1.500 qm
Bruttogeschossfläche: 2.300 qm
Leistungen nach HOAI: 1–9
Bauart: Massivbau/Putz
1996
Solingen, Horn
Bauherr: privat
1 Wohneinheit
Nettowohnfläche: 140 qm
Bruttogeschossfläche: 170 qm
Leistung nach HOAI: 1-5
Bauart: Holztafelbauweise
Solingen, Horn
Bauherr: privat
1 Wohneinheit
Nettowohnfläche: 140 qm
Bruttogeschossfläche: 170 qm
Leistung nach HOAI: 1-5
Bauart: Holztafelbauweise
1996
Sonsbeck, Zur Licht
Bauherr: Bauträger
20 Häuser mit 20 Wohneinheiten
Nettowohnfläche: 2.600 qm
Bruttogeschossfläche: 3.800 qm
Leistungen nach HOAI: 1–4
Bauweise: Massivbau/Verblendmauerwerk
Sonsbeck, Zur Licht
Bauherr: Bauträger
20 Häuser mit 20 Wohneinheiten
Nettowohnfläche: 2.600 qm
Bruttogeschossfläche: 3.800 qm
Leistungen nach HOAI: 1–4
Bauweise: Massivbau/Verblendmauerwerk
1995
Solingen, Gasstraße
Bauherr: privat
Anzahl der Wohneinheiten: 8
Nettowohnfläche: 490 qm
Bruttogeschossfläche: 740 qm
Leistungen nach HOAI: 1–9
Bauart: Massivbau/Putz
Solingen, Gasstraße
Bauherr: privat
Anzahl der Wohneinheiten: 8
Nettowohnfläche: 490 qm
Bruttogeschossfläche: 740 qm
Leistungen nach HOAI: 1–9
Bauart: Massivbau/Putz
1995
Solingen, Horn 3
Bauherr: privat
1 Wohneinheit
Nettowohnfläche: 150 qm
Bruttogeschossfläche: 205 qm
Leistung nach HOAI: 1-9
Bauart: Massivbau/Verblendmauerwerk
Solingen, Horn 3
Bauherr: privat
1 Wohneinheit
Nettowohnfläche: 150 qm
Bruttogeschossfläche: 205 qm
Leistung nach HOAI: 1-9
Bauart: Massivbau/Verblendmauerwerk
1994
Solingen, Mangenberger Straße
Bauherr: privat
Anzahl der Wohneinheiten: 5
Nettowohnfläche: 400 qm
Bruttogeschossfläche: 600 qm
Leistungen nach HOAI: 1–5
Bauart: Massivbau/Verblendmauerwerk
Solingen, Mangenberger Straße
Bauherr: privat
Anzahl der Wohneinheiten: 5
Nettowohnfläche: 400 qm
Bruttogeschossfläche: 600 qm
Leistungen nach HOAI: 1–5
Bauart: Massivbau/Verblendmauerwerk
1994
Solingen, Stübbener Straße
Bauherr: Bauträger
Anzahl der Wohneinheiten: 5
Nettowohnfläche: 350 qm
Bruttogeschossfläche: 450 qm
Leistungen nach HOAI: 1–5
Bauart: Massivbau/Putz
Solingen, Stübbener Straße
Bauherr: Bauträger
Anzahl der Wohneinheiten: 5
Nettowohnfläche: 350 qm
Bruttogeschossfläche: 450 qm
Leistungen nach HOAI: 1–5
Bauart: Massivbau/Putz
1994
Solingen, Steigerhäuschen
Bauherr: privat
2 Wohneinheiten
Nettowohnfläche: 185 qm
Bruttogeschossfläche: 265 qm
Leistung nach HOAI: 1-3
Bauart: Massivbau/Verblendmauerwerk
Solingen, Steigerhäuschen
Bauherr: privat
2 Wohneinheiten
Nettowohnfläche: 185 qm
Bruttogeschossfläche: 265 qm
Leistung nach HOAI: 1-3
Bauart: Massivbau/Verblendmauerwerk
1994
Solingen, Heiliger Born
Bauherr: privat
2 Wohneinheiten
Nettowohnfläche: 175 qm
Bruttogeschossfläche: 230 qm
Leistung nach HOAI: 1-9
Bauart: Massivbau/Putz
Solingen, Heiliger Born
Bauherr: privat
2 Wohneinheiten
Nettowohnfläche: 175 qm
Bruttogeschossfläche: 230 qm
Leistung nach HOAI: 1-9
Bauart: Massivbau/Putz
1994
Solingen, Schlicken
Bauherr: privat
2 Häuser mit 2 Wohneinheiten
Nettowohnfläche: 250 qm
Bruttogeschossfläche: 380 qm
Leistungen nach HOAI: 1–8
Massivbau/Putz
Solingen, Schlicken
Bauherr: privat
2 Häuser mit 2 Wohneinheiten
Nettowohnfläche: 250 qm
Bruttogeschossfläche: 380 qm
Leistungen nach HOAI: 1–8
Massivbau/Putz
1993
Solingen, Bauermannskulle 8
Bauherr: Bauträger
Anzahl der Wohneinheiten: 8
Nettowohnfläche: 600 qm
Bruttogeschossfläche: 850 qm
Leistungen nach HOAI: 1–8
Bauart: Massivbau/Putz
Solingen, Bauermannskulle 8
Bauherr: Bauträger
Anzahl der Wohneinheiten: 8
Nettowohnfläche: 600 qm
Bruttogeschossfläche: 850 qm
Leistungen nach HOAI: 1–8
Bauart: Massivbau/Putz
1993
Hilden, Kolksbruch
Bauherr: Bauträger
Anzahl der Wohneinheiten: 4
Nettowohnfläche: 450 qm
Bruttogeschossfläche: 700 qm
Leistungen nach HOAI: 1–5
Bauart: Massivbau/Putz
Hilden, Kolksbruch
Bauherr: Bauträger
Anzahl der Wohneinheiten: 4
Nettowohnfläche: 450 qm
Bruttogeschossfläche: 700 qm
Leistungen nach HOAI: 1–5
Bauart: Massivbau/Putz
1993
Solingen, Unnersberger Allee
Bauherr: Wohnungsbaugenossenschaft
Anzahl der Wohneinheiten: 20
Nettowohnfläche: 1.550 qm
Bruttogeschossfläche: 2.350qm
Leistungen nach HOAI: 1–8
Bauart: Massivbau/Putz
Solingen, Unnersberger Allee
Bauherr: Wohnungsbaugenossenschaft
Anzahl der Wohneinheiten: 20
Nettowohnfläche: 1.550 qm
Bruttogeschossfläche: 2.350qm
Leistungen nach HOAI: 1–8
Bauart: Massivbau/Putz
1993
Solingen, Olof-Palme-Str.
Bauherr: privat
2 Wohneinheiten
Nettowohnfläche: 170 qm
Bruttogeschossfläche: 215 qm
Leistung nach HOAI: 1-9
Bauart: Massivbau/Putz
Solingen, Olof-Palme-Str.
Bauherr: privat
2 Wohneinheiten
Nettowohnfläche: 170 qm
Bruttogeschossfläche: 215 qm
Leistung nach HOAI: 1-9
Bauart: Massivbau/Putz
1993
Solingen, Bauermannsk. 49
Bauherr: privat
2 Wohneinheiten
Nettowohnfläche: 330 qm
Bruttogeschossfläche: 570 qm
Leistung nach HOAI: 1-9
Bauart: Massivbau/Verblendmauerwerk
Solingen, Bauermannsk. 49
Bauherr: privat
2 Wohneinheiten
Nettowohnfläche: 330 qm
Bruttogeschossfläche: 570 qm
Leistung nach HOAI: 1-9
Bauart: Massivbau/Verblendmauerwerk
1993
Solingen, Bauermannskulle 20–28
Bauherr: Bauträger
5 Häuser mit 6 Wohneinheiten
Nettowohnfläche: 550 qm
Bruttogeschossfläche: 630 qm
Leistungen nach HOAI: 1–8
Bauweise: Massivbau/Putz
Solingen, Bauermannskulle 20–28
Bauherr: Bauträger
5 Häuser mit 6 Wohneinheiten
Nettowohnfläche: 550 qm
Bruttogeschossfläche: 630 qm
Leistungen nach HOAI: 1–8
Bauweise: Massivbau/Putz
1992
Solingen, Neuenkamper Straße
Bauherr: Bauträger
Anzahl der Wohneinheiten: 7
Nettowohnfläche: 550 qm
Bruttogeschossfläche: 750 qm
Leistungen nach HOAI: 1–5
Bauart: Massivbau/Verblendmauerwerk
Solingen, Neuenkamper Straße
Bauherr: Bauträger
Anzahl der Wohneinheiten: 7
Nettowohnfläche: 550 qm
Bruttogeschossfläche: 750 qm
Leistungen nach HOAI: 1–5
Bauart: Massivbau/Verblendmauerwerk
1992
Leichlingen, Kradenpuhl 38a
Bauherr: privat
1 Wohneinheit
Nettowohnfläche: 160 qm
Bruttogeschossfläche: 235 qm
Leistung nach HOAI: 1-9
Bauart: Massivbau/Verblendmauerwerk
Leichlingen, Kradenpuhl 38a
Bauherr: privat
1 Wohneinheit
Nettowohnfläche: 160 qm
Bruttogeschossfläche: 235 qm
Leistung nach HOAI: 1-9
Bauart: Massivbau/Verblendmauerwerk
1992
Solingen, Johänntgesbr. Weg
Bauherr: privat
2 Wohneinheiten
Nettowohnfläche: 180 qm
Bruttogeschossfläche: 275 qm
Leistung nach HOAI: 1-9
Bauart: Massivbau/Putz
Solingen, Johänntgesbr. Weg
Bauherr: privat
2 Wohneinheiten
Nettowohnfläche: 180 qm
Bruttogeschossfläche: 275 qm
Leistung nach HOAI: 1-9
Bauart: Massivbau/Putz
1992
Solingen, Höhscheider Hof 8
Bauherr: privat
2 Häuser mit 2 Wohneinheiten
Nettowohnfläche: 260 qm
Bruttogeschossfläche: 400 qm
Leistungen nach HOAI: 1–8
Massivbau/Putz
Solingen, Höhscheider Hof 8
Bauherr: privat
2 Häuser mit 2 Wohneinheiten
Nettowohnfläche: 260 qm
Bruttogeschossfläche: 400 qm
Leistungen nach HOAI: 1–8
Massivbau/Putz
1992
Solingen, Fritz-Reuter-Straße
Bauherr: Bauträger
2 Häuser mit 2 Wohneinheiten
Nettowohnfläche: 270 qm
Bruttogeschossfläche: 400 qm
Leistungen nach HOAI: 1–8
Massivbau/Putz
Solingen, Fritz-Reuter-Straße
Bauherr: Bauträger
2 Häuser mit 2 Wohneinheiten
Nettowohnfläche: 270 qm
Bruttogeschossfläche: 400 qm
Leistungen nach HOAI: 1–8
Massivbau/Putz
1991
Velbert, Nierenhof
Bauherr: privat
Anzahl der Wohneinheiten: 16
Nettowohnfläche: 1.200 qm
Bruttogeschossfläche: 1.600 qm
Leistungen nach HOAI: 1–5
Bauart: Massivbau/Putz
Velbert, Nierenhof
Bauherr: privat
Anzahl der Wohneinheiten: 16
Nettowohnfläche: 1.200 qm
Bruttogeschossfläche: 1.600 qm
Leistungen nach HOAI: 1–5
Bauart: Massivbau/Putz
1991
Solingen, Forststraße 70
Bauherr: Bauträger
Anzahl der Wohneinheiten: 7
Nettowohnfläche: 600 qm
Bruttogeschossfläche: 850 qm
Leistungen nach HOAI: 1–5
Bauart: Massivbau/Putz
Solingen, Forststraße 70
Bauherr: Bauträger
Anzahl der Wohneinheiten: 7
Nettowohnfläche: 600 qm
Bruttogeschossfläche: 850 qm
Leistungen nach HOAI: 1–5
Bauart: Massivbau/Putz
1991
Solingen, Steigerhäuschen
Bauherr: privat
1 Wohneinheit
Nettowohnfläche: 135 qm
Bruttogeschossfläche: 210 qm
Leistung nach HOAI: 1-9
Bauart: Massivbau/Verblendmauerwerk
Solingen, Steigerhäuschen
Bauherr: privat
1 Wohneinheit
Nettowohnfläche: 135 qm
Bruttogeschossfläche: 210 qm
Leistung nach HOAI: 1-9
Bauart: Massivbau/Verblendmauerwerk
1991
Solingen, Höhscheider Hof
Bauherr: privat
2 Wohneinheiten
Nettowohnfläche: 155 qm
Bruttogeschossfläche: 225 qm
Leistung nach HOAI: 1-9
Bauart: Massivbau/Putz
Solingen, Höhscheider Hof
Bauherr: privat
2 Wohneinheiten
Nettowohnfläche: 155 qm
Bruttogeschossfläche: 225 qm
Leistung nach HOAI: 1-9
Bauart: Massivbau/Putz
1991
Solingen, Bauermannskulle 45-47
Bauherr: privat
2 Häuser mit 3 Wohneinheiten
Nettowohnfläche: 330 qm
Bruttogeschossfläche: 500 qm
Leistungen nach HOAI: 1–5
Massivbau/Putz
Solingen, Bauermannskulle 45-47
Bauherr: privat
2 Häuser mit 3 Wohneinheiten
Nettowohnfläche: 330 qm
Bruttogeschossfläche: 500 qm
Leistungen nach HOAI: 1–5
Massivbau/Putz
1990
Solingen, Steigerhäuschen
Bauherr: privat
1 Wohneinheit
Nettowohnfläche: 120 qm
Bruttogeschossfläche: 170 qm
Leistung nach HOAI: 1-9
Bauart: Massivbau/Putz
Solingen, Steigerhäuschen
Bauherr: privat
1 Wohneinheit
Nettowohnfläche: 120 qm
Bruttogeschossfläche: 170 qm
Leistung nach HOAI: 1-9
Bauart: Massivbau/Putz
1990
Solingen, Bergfeld
Bauherr: privat
2 Wohneinheiten
Nettowohnfläche: 185 qm
Bruttogeschossfläche: 220 qm
Leistung nach HOAI: 1-9
Bauart: Massivbau/Putz
Solingen, Bergfeld
Bauherr: privat
2 Wohneinheiten
Nettowohnfläche: 185 qm
Bruttogeschossfläche: 220 qm
Leistung nach HOAI: 1-9
Bauart: Massivbau/Putz
1990
Düsseldorf-Wittlaer, Sonnenacker 8
Bauherr: privat
1 Wohneinheit
Nettowohnfläche: 170 qm
Bruttogeschossfläche: 250 qm
Leistung nach HOAI: 1-9
Bauart: Massivbau/Verblendmauerwerk
Düsseldorf-Wittlaer, Sonnenacker 8
Bauherr: privat
1 Wohneinheit
Nettowohnfläche: 170 qm
Bruttogeschossfläche: 250 qm
Leistung nach HOAI: 1-9
Bauart: Massivbau/Verblendmauerwerk
1989
Solingen, Rüdiger Str. 16
Bauherr: privat
2 Wohneinheiten
Nettowohnfläche: 200 qm
Bruttogeschossfläche: 280 qm
Leistung nach HOAI: 1-3
Bauart: Massivbau/Verblendmauerwerk
Solingen, Rüdiger Str. 16
Bauherr: privat
2 Wohneinheiten
Nettowohnfläche: 200 qm
Bruttogeschossfläche: 280 qm
Leistung nach HOAI: 1-3
Bauart: Massivbau/Verblendmauerwerk
1989
Burscheid, Dierath 29a
Bauherr: privat
1 Wohneinheit
Nettowohnfläche: 165 qm
Bruttogeschossfläche: 250 qm
Leistung nach HOAI: 1-9
Bauart: Massivbau/Putz
Burscheid, Dierath 29a
Bauherr: privat
1 Wohneinheit
Nettowohnfläche: 165 qm
Bruttogeschossfläche: 250 qm
Leistung nach HOAI: 1-9
Bauart: Massivbau/Putz
1989
Leichlingen, Bechhauser Weg
Bauherr: privat
2 Häuser mit 2 Wohneinheiten
Nettowohnfläche: 270 qm
Bruttogeschossfläche: 400 qm
Leistungen nach HOAI: 1–8
Massivbau/Putz
Leichlingen, Bechhauser Weg
Bauherr: privat
2 Häuser mit 2 Wohneinheiten
Nettowohnfläche: 270 qm
Bruttogeschossfläche: 400 qm
Leistungen nach HOAI: 1–8
Massivbau/Putz
1989
Leichlingen, An der Wupper
Bauherr: privat
1 Haus 1 Wohneinheit
Nettowohnfläche: 150 qm
Bruttogeschossfläche: 210 qm
Leistungen nach HOAI: 1–8
Bauweise: Massivbau/Verblendmauerwerk
Leichlingen, An der Wupper
Bauherr: privat
1 Haus 1 Wohneinheit
Nettowohnfläche: 150 qm
Bruttogeschossfläche: 210 qm
Leistungen nach HOAI: 1–8
Bauweise: Massivbau/Verblendmauerwerk
1988
Solingen, Rehpfad 3
Bauherr: privat
1 Wohneinheit
Nettowohnfläche: 155 qm
Bruttogeschossfläche: 210 qm
Leistung nach HOAI: 1-9
Bauart: Massivbau/Verblendmauerwerk
Solingen, Rehpfad 3
Bauherr: privat
1 Wohneinheit
Nettowohnfläche: 155 qm
Bruttogeschossfläche: 210 qm
Leistung nach HOAI: 1-9
Bauart: Massivbau/Verblendmauerwerk
1988
Leichlingen, Montanusstraße
Bauherr: privat
2 Häuser mit 2 Wohneinheiten
Nettowohnfläche: 270 qm
Bruttogeschossfläche: 400 qm
Leistungen nach HOAI: 1–8
Massivbau/Putz
Leichlingen, Montanusstraße
Bauherr: privat
2 Häuser mit 2 Wohneinheiten
Nettowohnfläche: 270 qm
Bruttogeschossfläche: 400 qm
Leistungen nach HOAI: 1–8
Massivbau/Putz
1988
Solingen, Neuenkamper Feld
Bauherr: Bauträger
2 Häuser mit 2 Wohneinheiten
Nettowohnfläche: 260 qm
Bruttogeschossfläche: 350 qm
Leistungen nach HOAI: 1–8 Massivbau/Putz
Solingen, Neuenkamper Feld
Bauherr: Bauträger
2 Häuser mit 2 Wohneinheiten
Nettowohnfläche: 260 qm
Bruttogeschossfläche: 350 qm
Leistungen nach HOAI: 1–8 Massivbau/Putz
1988
Burscheid, Altenhilgen
Bauherr: Bauträger
2 Häuser mit 2 Wohneinheiten
Nettowohnfläche: 260 qm
Bruttogeschossfläche: 400 qm
Leistungen nach HOAI: 1–8
Massivbau/Verblendmauerwerk
Burscheid, Altenhilgen
Bauherr: Bauträger
2 Häuser mit 2 Wohneinheiten
Nettowohnfläche: 260 qm
Bruttogeschossfläche: 400 qm
Leistungen nach HOAI: 1–8
Massivbau/Verblendmauerwerk
1988
Solingen, Olof-Palme-Straße
Bauherr: privat
1 Haus mit 1 Wohneinheit
Nettowohnfläche: 140 qm
Bruttogeschossfläche: 200 qm
Leistungen nach HOAI: 1–8
Massivbau/Verblendmauerwerk
Solingen, Olof-Palme-Straße
Bauherr: privat
1 Haus mit 1 Wohneinheit
Nettowohnfläche: 140 qm
Bruttogeschossfläche: 200 qm
Leistungen nach HOAI: 1–8
Massivbau/Verblendmauerwerk
1988
Solingen, Olof-Palme-Straße
Bauherr: privat
1 Haus mit 1 Wohneinheit
Nettowohnfläche: 150 qm
Bruttogeschossfläche: 200 qm
Leistungen nach HOAI: 1–8
Massivbau/Verblendmauerwerk
Solingen, Olof-Palme-Straße
Bauherr: privat
1 Haus mit 1 Wohneinheit
Nettowohnfläche: 150 qm
Bruttogeschossfläche: 200 qm
Leistungen nach HOAI: 1–8
Massivbau/Verblendmauerwerk
1988
Solingen, Bergfeld 23–29
Bauherr: Bauträger
4 Häuser mit 4 Wohneinheiten
Nettowohnfläche: 520 qm
Bruttogeschossfläche: 750 qm
Leistungen nach HOAI: 1–9
Bauweise: Massivbau/Verblendmauerwerk
Solingen, Bergfeld 23–29
Bauherr: Bauträger
4 Häuser mit 4 Wohneinheiten
Nettowohnfläche: 520 qm
Bruttogeschossfläche: 750 qm
Leistungen nach HOAI: 1–9
Bauweise: Massivbau/Verblendmauerwerk
1988
Solingen, Neckarstraße
Bauherr: Bauträger
7 Häuser mit 9 Wohneinheiten
Nettowohnfläche: 1.000 qm
Bruttogeschossfläche: 1.450 qm
Leistungen nach HOAI: 1–9
Bauweise: Massivbau/Verblendmauerwerk
Solingen, Neckarstraße
Bauherr: Bauträger
7 Häuser mit 9 Wohneinheiten
Nettowohnfläche: 1.000 qm
Bruttogeschossfläche: 1.450 qm
Leistungen nach HOAI: 1–9
Bauweise: Massivbau/Verblendmauerwerk
1987
Solingen, Am Kampsiepen
Bauherr: Bauträger
4 Häuser mit 4 Wohneinheiten
Nettowohnfläche: 560 qm
Bruttogeschossfläche: 800 qm
Leistungen nach HOAI: 1–9
Bauweise: Massivbau/Verblendmauerwerk
Solingen, Am Kampsiepen
Bauherr: Bauträger
4 Häuser mit 4 Wohneinheiten
Nettowohnfläche: 560 qm
Bruttogeschossfläche: 800 qm
Leistungen nach HOAI: 1–9
Bauweise: Massivbau/Verblendmauerwerk
1987
Solingen, Bauermannskulle
Bauherr: private Bauherrengemeinschaft
3 Häuser mit 4 Wohneinheiten
Nettowohnfläche: 500 qm
Bruttogeschossfläche: 700 qm
Leistungen nach HOAI: 1–9
Bauweise: Massivbau/Putz
Solingen, Bauermannskulle
Bauherr: private Bauherrengemeinschaft
3 Häuser mit 4 Wohneinheiten
Nettowohnfläche: 500 qm
Bruttogeschossfläche: 700 qm
Leistungen nach HOAI: 1–9
Bauweise: Massivbau/Putz
1987
Solingen, Goudastraße
Bauherr: private Bauherrengemeinschaft
5 Häuser mit 7 Wohneinheiten
Nettowohnfläche: 800 qm
Bruttogeschossfläche: 1.200 qm
Leistungen nach HOAI: 1–9
Bauweise: Massivbau/Verblendmauerwerk
Solingen, Goudastraße
Bauherr: private Bauherrengemeinschaft
5 Häuser mit 7 Wohneinheiten
Nettowohnfläche: 800 qm
Bruttogeschossfläche: 1.200 qm
Leistungen nach HOAI: 1–9
Bauweise: Massivbau/Verblendmauerwerk
1987
Burscheid, Sauers Weiden
Bauherr: private Bauherrengemeinschaft
3 Häuser mit 4 Wohneinheiten
Nettowohnfläche: 430 qm
Bruttogeschossfläche: 600 qm
Leistungen nach HOAI: 1–3
Bauweise: Massivbau/Verblendmauerwerk
Burscheid, Sauers Weiden
Bauherr: private Bauherrengemeinschaft
3 Häuser mit 4 Wohneinheiten
Nettowohnfläche: 430 qm
Bruttogeschossfläche: 600 qm
Leistungen nach HOAI: 1–3
Bauweise: Massivbau/Verblendmauerwerk
1986
Solingen, Schlicken 16
Bauherr: privat
1 Wohneinheit
Nettowohnfläche: 135 qm
Bruttogeschossfläche: 200 qm
Leistung nach HOAI: 1-9
Bauart: Massivbau/Verblendmauerwerk
Solingen, Schlicken 16
Bauherr: privat
1 Wohneinheit
Nettowohnfläche: 135 qm
Bruttogeschossfläche: 200 qm
Leistung nach HOAI: 1-9
Bauart: Massivbau/Verblendmauerwerk
1986
Solingen, Bergfeld 4–16
Bauherr: private Bauherrengemeinschaft
7 Häuser mit 9 Wohneinheiten
Nettowohnfläche: 1.050 qm
Bruttogeschossfläche: 1.550 qm
Leistungen nach HOAI: 1–9
Bauweise: Massivbau/Verblendmauerwerk
Solingen, Bergfeld 4–16
Bauherr: private Bauherrengemeinschaft
7 Häuser mit 9 Wohneinheiten
Nettowohnfläche: 1.050 qm
Bruttogeschossfläche: 1.550 qm
Leistungen nach HOAI: 1–9
Bauweise: Massivbau/Verblendmauerwerk
1986
Solingen, Bauermannskulle 66–74
Bauherr: private Bauherrengemeinschaft
5 Häuser mit 6 Wohneinheiten
Nettowohnfläche: 800 qm
Bruttogeschossfläche: 1.150 qm
Leistungen nach HOAI: 1–9
Bauweise: Massivbau/Verblendmauerwerk
Solingen, Bauermannskulle 66–74
Bauherr: private Bauherrengemeinschaft
5 Häuser mit 6 Wohneinheiten
Nettowohnfläche: 800 qm
Bruttogeschossfläche: 1.150 qm
Leistungen nach HOAI: 1–9
Bauweise: Massivbau/Verblendmauerwerk
1985
Solingen, Annastraße
Bauherr: privat
1 Wohneinheit
Nettowohnfläche: 140 qm
Bruttogeschossfläche: 200 qm
Leistung nach HOAI: 1-9
Bauart: Massivbau/Verblendmauerwerk
Solingen, Annastraße
Bauherr: privat
1 Wohneinheit
Nettowohnfläche: 140 qm
Bruttogeschossfläche: 200 qm
Leistung nach HOAI: 1-9
Bauart: Massivbau/Verblendmauerwerk
1985
Solingen, Zaunkönigweg 11/13
Bauherr: privat
2 Häuser mit 2 Wohneinheiten
Nettowohnfläche: 270 qm
Bruttogeschossfläche: 400 qm
Leistungen nach HOAI: 1–9
Massivbau/Putz
Solingen, Zaunkönigweg 11/13
Bauherr: privat
2 Häuser mit 2 Wohneinheiten
Nettowohnfläche: 270 qm
Bruttogeschossfläche: 400 qm
Leistungen nach HOAI: 1–9
Massivbau/Putz
1985
Solingen, Bauermannskulle 78–96
Bauherr: private Bauherrengemeinschaft
5 Häuser mit 5 Wohneinheiten
Nettowohnfläche: 900 qm
Bruttogeschossfläche: 1.250 qm
Leistungen nach HOAI: 1–9
Bauweise: Massivbau/Verblendmauerwerk
Solingen, Bauermannskulle 78–96
Bauherr: private Bauherrengemeinschaft
5 Häuser mit 5 Wohneinheiten
Nettowohnfläche: 900 qm
Bruttogeschossfläche: 1.250 qm
Leistungen nach HOAI: 1–9
Bauweise: Massivbau/Verblendmauerwerk
1984
Solingen, Bauermannskulle 53–57
Bauherr: private Bauherrengemeinschaft
3 Häuser mit 6 Wohneinheiten
Nettowohnfläche: 600 qm
Bruttogeschossfläche: 1.800 qm
Leistungen nach HOAI: 1–9
Bauweise: Massivbau/Verblendmauerwerk
Solingen, Bauermannskulle 53–57
Bauherr: private Bauherrengemeinschaft
3 Häuser mit 6 Wohneinheiten
Nettowohnfläche: 600 qm
Bruttogeschossfläche: 1.800 qm
Leistungen nach HOAI: 1–9
Bauweise: Massivbau/Verblendmauerwerk
1984
Solingen, Bauermannskulle 75–87
Bauherr: private Bauherrengemeinschaft
7 Häuser mit 8 Wohneinheiten
Nettowohnfläche: 950 qm
Bruttogeschossfläche: 1.350 qm
Leistungen nach HOAI: 1–9
Bauweise: Massivbau/Verblendmauerwerk
Solingen, Bauermannskulle 75–87
Bauherr: private Bauherrengemeinschaft
7 Häuser mit 8 Wohneinheiten
Nettowohnfläche: 950 qm
Bruttogeschossfläche: 1.350 qm
Leistungen nach HOAI: 1–9
Bauweise: Massivbau/Verblendmauerwerk
1984
Solingen, Kampsiepen 1–13
Bauherr: private Bauherrengemeinschaft
7 Häuser mit 10 Wohneinheiten
Nettowohnfläche: 1.100 qm
Bruttogeschossfläche: 1.400 qm
Leistungen nach HOAI: 1–9
Bauweise: Massivbau/Verblendmauerwerk
Solingen, Kampsiepen 1–13
Bauherr: private Bauherrengemeinschaft
7 Häuser mit 10 Wohneinheiten
Nettowohnfläche: 1.100 qm
Bruttogeschossfläche: 1.400 qm
Leistungen nach HOAI: 1–9
Bauweise: Massivbau/Verblendmauerwerk
1983
Solingen, Bauermannskulle
Bauherr: privat
2 Wohneinheiten
Nettowohnfläche: 175 qm
Bruttogeschossfläche: 280 qm
Leistung nach HOAI: 1-9
Bauart: Massivbau/Putz
Solingen, Bauermannskulle
Bauherr: privat
2 Wohneinheiten
Nettowohnfläche: 175 qm
Bruttogeschossfläche: 280 qm
Leistung nach HOAI: 1-9
Bauart: Massivbau/Putz
1983
Solingen, Bauermannskulle 43
Bauherr: privat
1 Wohneinheit
Nettowohnfläche: 135 qm
Bruttogeschossfläche: 180 qm
Leistung nach HOAI: 1-9
Bauart: Massivbau/Putz
Solingen, Bauermannskulle 43
Bauherr: privat
1 Wohneinheit
Nettowohnfläche: 135 qm
Bruttogeschossfläche: 180 qm
Leistung nach HOAI: 1-9
Bauart: Massivbau/Putz
1983
Solingen, Kleiberweg 19
Bauherr: privat
1 Wohneinheit
Nettowohnfläche: 130 qm
Bruttogeschossfläche: 210 qm
Leistung nach HOAI: 1-9
Bauart: Massivbau/Putz
Solingen, Kleiberweg 19
Bauherr: privat
1 Wohneinheit
Nettowohnfläche: 130 qm
Bruttogeschossfläche: 210 qm
Leistung nach HOAI: 1-9
Bauart: Massivbau/Putz
1983
Ennepetal, Spatzenweg
Bauherr: private Bauherrengemeinschaft
15 Häuser mit 15 Wohneinheiten
Nettowohnfläche: 1.950 qm
Bruttogeschossfläche: 2.500 qm
Leistungen nach HOAI: 1–9
Bauweise: Massivbau/Verblendmauerwerk
Ennepetal, Spatzenweg
Bauherr: private Bauherrengemeinschaft
15 Häuser mit 15 Wohneinheiten
Nettowohnfläche: 1.950 qm
Bruttogeschossfläche: 2.500 qm
Leistungen nach HOAI: 1–9
Bauweise: Massivbau/Verblendmauerwerk
Axel Möller, Dipl.-Ing.(Univ.), Architekt BDA